Project Data
| Architect | David Jameson Architect |
| Principal | David Jameson |
| Project Architect | Christopher Cabacar |
| Contractor | MT Puskar Construction |
| Photographer | Paul Warchol |
| Year | 2007 |
| Location | Bethesda – Maryland – USA |
| Built Area | 465 m2 (5.000 sq ft) |
| Bedrooms | 4 |
Black White Residence
From the architects:
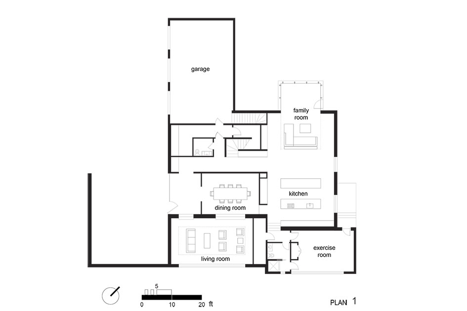
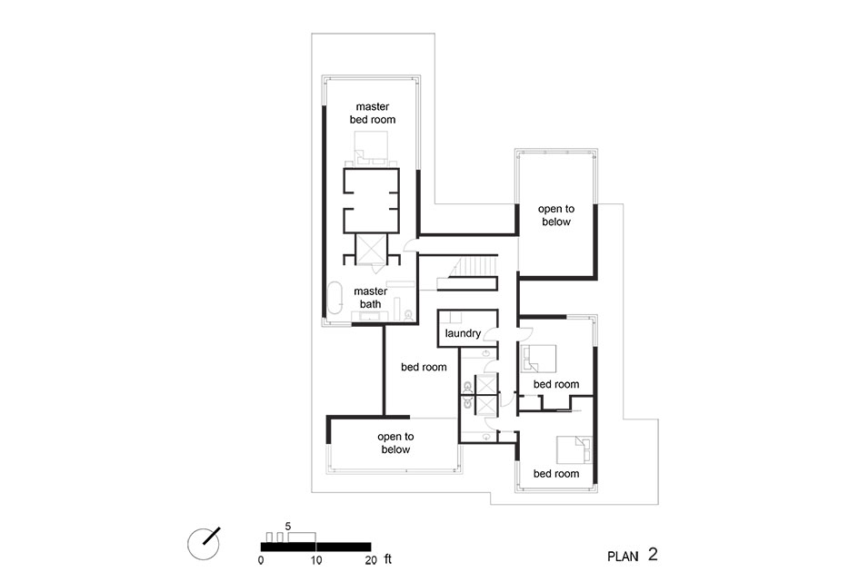
Inhabiting the masonry shell of an existing house, this project engages the phenomenon of ruins and explores the idea of aperture. The design program called for renovating the main level and adding a second level with a significantly smaller footprint.
Alluding to the Acropolis, four modern glass temples emerge from a white stucco plinth as volumes of light, and define space between each other. These volumes of light are stitched together by a circulation core sheathed in black that extends to cradle each space. The volumes are instruments of light, gathering natural light to the interior during the day and glowing in the landscape at night.
The glass volumes of the upper level and windows incised into the main level stucco plinth are thought of as lenses to the landscape. Facing the street side of the site, long thin ‘census’ windows give focus to the measured cadence of tree trunks while editing views to passing vehicles. Above, the glass volumes provide panoramic views to the tree canopy and sky above. To the rear yard, one glass volume slices through the plinth to frame unencumbered two story views.
David Jameson Architect
Request more information
Your inquiry will be forwarded to the architects.




































