Architect AR43 Architects
Principal Architect Lim Cheng Kooi
Design Team Gian Hartono – Ladines Gina – Hor Sue Wern – Tan Toon Cheng
Structural Engineer MSE Consulting Engineers
M&E Engineer EWC Engineers
Quantity Surveyor WS Surveyorship
Builders OAL Builders
Photographer Albert Lim KS
Project Year 2015
Location 16 Lengkok Angsa – Singapore
Area 313m2 (3.370 sq ft)
Bedrooms 4 + Guest room

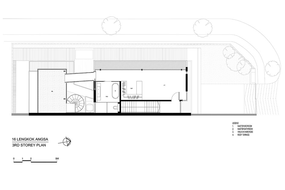
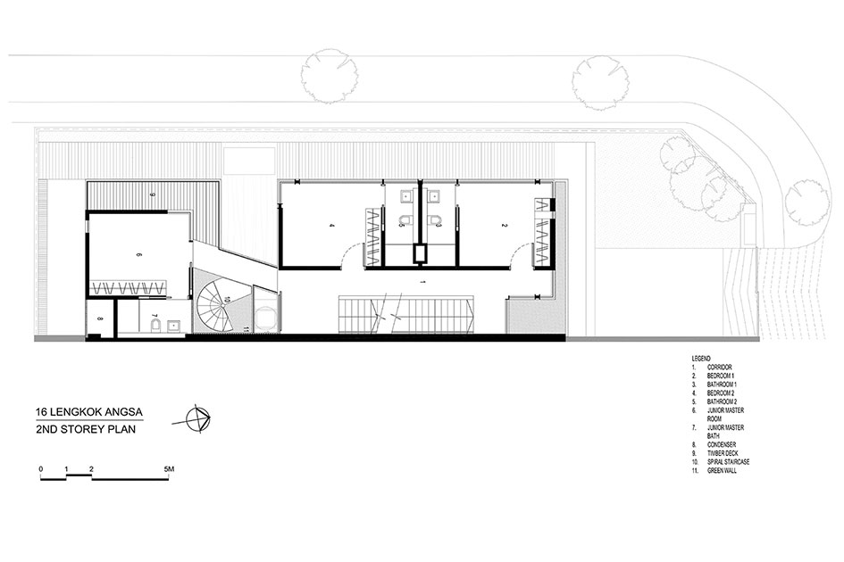
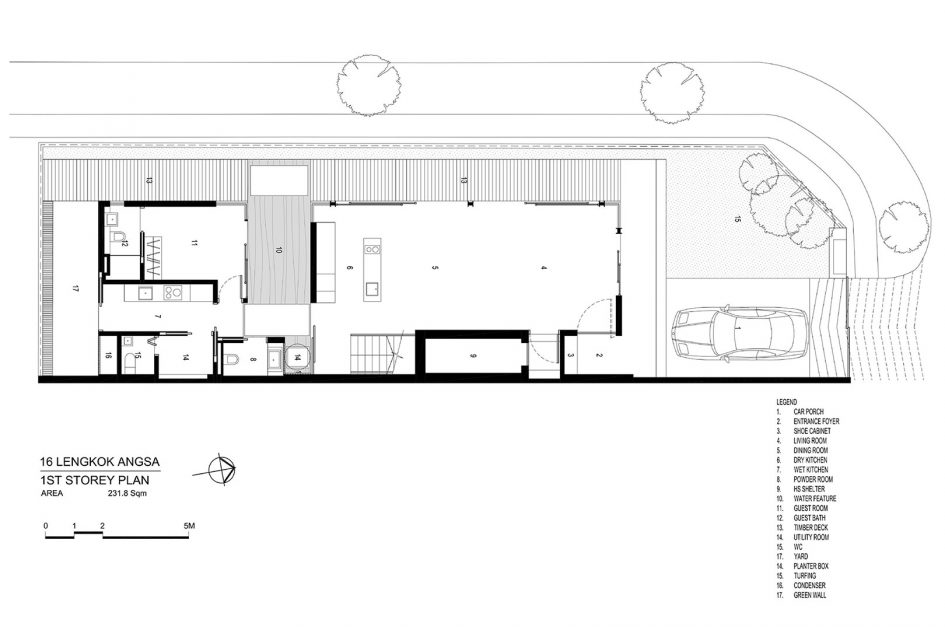
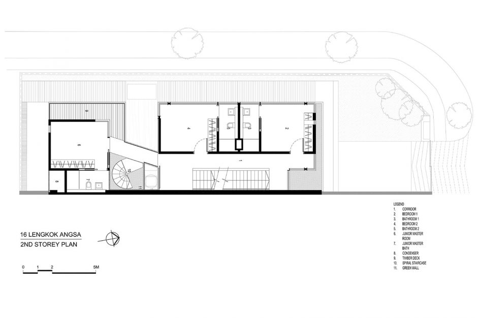
Plans / Diagrams

Paterson 3

From the architects:
Paterson 3 
comprises of 2 uniquely designed corner terrace units. Whilst sited within a walking distance to the bustling Orchard Road, each unit is pleasantly situated within a calm, soothingly hidden-away haven along Lengkok Angsa.

The design emphasizes on the relation between indoor/ outdoor, through the use of full height glass windows and large sliding panels. The play of elements between the timber cladding, panoramic glass and dark colored metal ties this enclave together into a contemporary art-inspired façade. The design of each unit features clean defined lines, and an open-layout with courtyard space. This allows for abundant tropical sunlight to filter into the living spaces. Each of these spaces that were being allocated manages to retain the privacy of its users.

The courtyard / water-feature were designed into the unit’s layout, resulting in a transition break between the front and the rear spaces. This created the opportunity for stepping stones and playful bridge-connection within the courtyard’s void. The roof terrace is essential in not only accommodating the growth of featured trees but to also to allow outdoor living spaces under the glimpse of stars and its urban landscape.

The large cantilevered roof above the courtyard offers natural light to penetrate the 3 storey deep open spaces below while still providing shelter.  The courtyard spaces are covered at the top with laminated glass and filtered by aluminum trellis providing shelter from the rain and yet allowing balmy light to nourish the green wall along the party wall and featured tree below.

Natural timber cladding, suspended bridges, green walls, roof garden and water-features were integrated within the project, aimed to amplify the exciting tropical living within a tight urban environment.

AR43 Architects

Share this project

Request more information

Your inquiry will be forwarded to the architects.